VERO BEACH, FL

Providence
Pointe

Providence Pointe is a 188-acre property located in Vero Beach, Florida. The project has been in the planning and permitting stage for the past three years and envisions a vibrant gated community with a leisurely, nature-related amenity theme centered on a chain of artesian spring fed, man-made lakes.

PHASING PLAN

PROJECT SUMMARY

At present, the entire community has been master-planned and permitted through the preliminary plat stage with the land development and horizontal construction permits in hand for Phases I and II. Phases 3 through 6 are approved for preliminary plat and have preliminary engineering and landscape improvement designs in place.

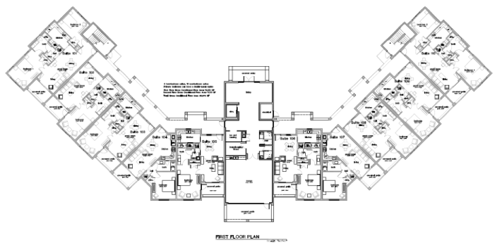
228 UNIT / 19 BUILDINGS

LUXURY RENTAL APARTMENTS

Each building has 12 residences (each is a corner unit), under building parking garages, an elevator, and an air-conditioned lobby on each floor. Initial construction will begin upon securing financing requirements.

VERO BEACH, FL

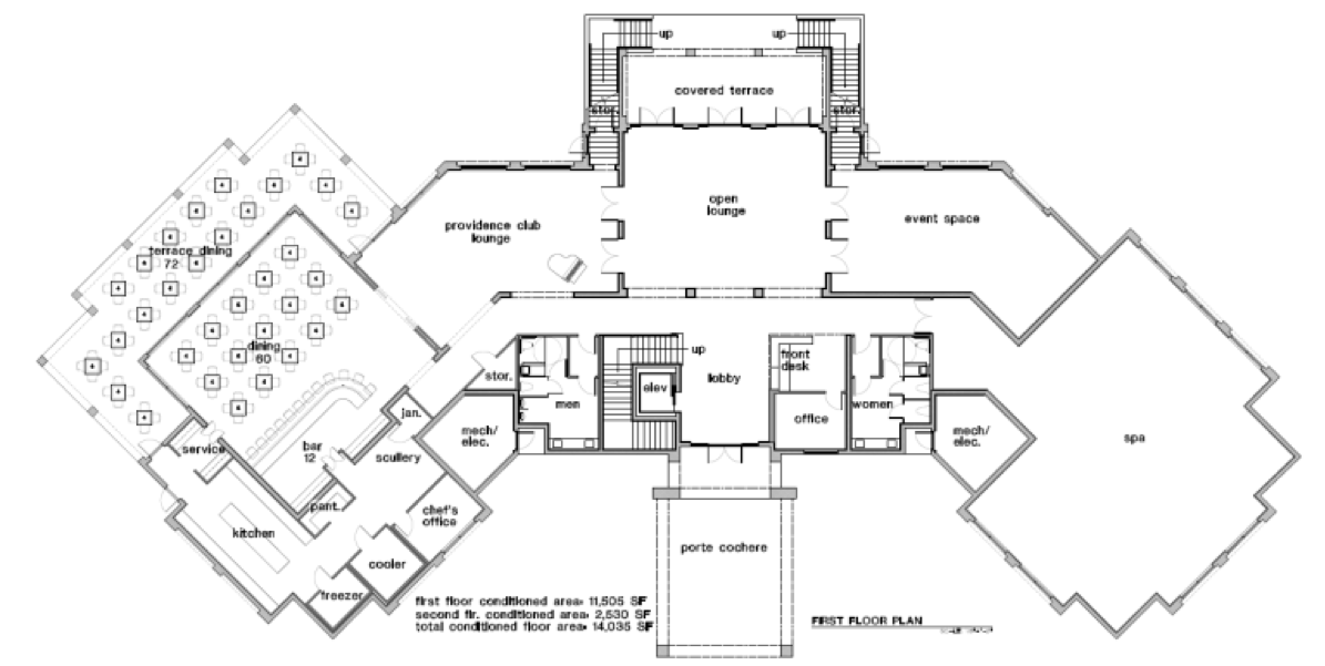
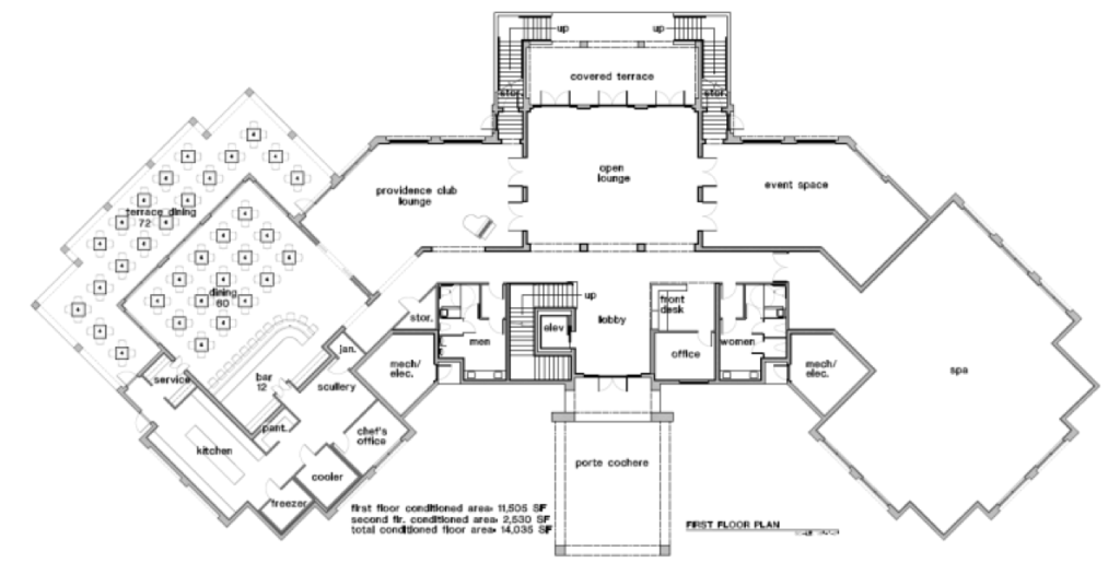
Village Green

The Village Green serves as the hub and heart of the community, featuring a 15,000 square foot Lake Club facility (to be owned by the developer), which will include:

AMENATIES:

À la carte dining, open to the public, offering a variety of meals for guests and members alike.

Fitness center access is included in the club membership, while the spa offers à la carte services and is open to the public.

Located on both the 1st and 2nd floors of the clubhouse, providing relaxing spaces for members to socialize or unwind.

A 21-unit boutique style Suite Hotel for short and mid-term rentals; and

23,000 square feet of neighborhood commercial in three or four buildings including another 36 short to long term stay apartments on floors 2 and 3.

ADDITIONAL MEMBER AMENATIES:

A luxurious swimming pool for club members to enjoy year-round.

Exclusive access to water sports such as canoes, kayaks, and paddleboards. The pavilion also features bathrooms and an à la carte pub food menu for a relaxed dining experience.

Sandy Beach access to a 32-acre artesian spring-fed lake, perfect for swimming, lounging, or water activities.

Includes tennis and pickleball courts, offering members a chance to play and stay active in a social environment.

Featuring walking and biking trails, the preserve allows members to enjoy scenic outdoor adventures amidst nature.

253 SINGLE FAMILY HOMESITES

Single-Family Homesites

The community is permitted for 253 single-family home sites, substantially all of which are on water or a nature/park view setting. The homesites are under contract with Kolter Homes, an award-winning regional homebuilder. The single family homesites include exclusive access to a garden center at the western edge of the property.